“漂浮的盒子”:拂去面纱,晓看蕴藏在建筑里的东方美学!
我馆资讯 / 2020-08-06
一、场地
项目位于天府新区秦皇寺商务中心核心地段,处于杭州路路与蜀州路交汇街角处,毗邻天府3500亩中央公园,是天府公园环带上的重要公共文化建筑之一,与在建的“天府音乐厅”、已经落成的“天府国际会议中心”等大型公建相邻。地处繁华之角,在地理上具备了相当高的人流、文化、景观优势,场地有天然的外向属性。

二、建筑
建筑设计同样也是相对外向和动态的思路。建筑由地面向上生长出单一大体量、功能与意境兼顾,有明显的后现代手法。
1.体量:
美术馆项目总建筑面积71840平方米,主楼建筑面积43685平方米,地下二层,地上三层,馆内设有8个专业展厅;设有具备恒温恒湿系统的珍品馆、库;以及学术研究、会议报告、文史等附属功能,属于中大型专业美术馆。得益于较大的体量,有较好的空间延展与可塑性。
2.外型:
馆藏有大量的近代中国名画。故,其设计理念源自中国水墨意境,形似灵山秀水之间“漂浮的艺术体”,形成“水墨”与“现代”、“曲”与“直”、“柔美”与“力量”的碰撞。
城市空间上同样呈现“横卧”与“竖向”的对比,有明显的“二元”审美,为“卧式覆土建筑”。

色彩的运用采用了非常大胆的“红”,“墨”撞色,在现代建筑的用色上很少见,红韵在绿色大地上的跃起是一种相对含蓄的升腾感。

3.场景-视觉的“出挑者”:
远:半鸟瞰下是中央公园视角的一抹跳色;
中:街角处有明显的视觉冲击力;
近:大体量单一形体的力量感;


4.产学一体:
美术馆可承办各类学术及研讨会议、同时可对文史档案进行保管及研究。

◮广汇美术馆学术报告厅
打造以“艺术+疆潮”为特点的特色街区--INK生活美学空间。

◮广汇美术馆文创商业区域
三、结构与施工
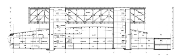
大跨度桁架钢结构及其提升施工:
广汇美术馆主馆整体采用钢结构桁架展厅,由两个劲性结构核心筒支撑,除核心筒落地外其他构件全部悬空,距地下室顶板最大高度达32米,以体现方案设计理念中“漂浮”的概念。

◮广汇美术馆场馆剖面
本次提升的钢结构展厅是整个美术馆的主体结构,最大跨度50.4米,两侧悬挑跨度最大20米,总重量逾1500吨,相当于30架波音737客机的重量。大跨度、大重量、大体积的吊装提升,在国内重大场馆建设中都是十分罕见的。
美术馆钢桁架提升首次采取“地下室顶板原位拼装+分区域液压提升”的安装思路。钢桁架展厅位于美术馆二层至屋面层,下方一层为混凝土结构,一层屋面为弧形屋面。主要施工顺序为:土建地下室施工完成后,核心筒继续施工,一层结构先不施工,开始在地下室顶板上进行钢桁架楼面拼装,钢桁架在楼面拼装完成后,采用液压提升将钢桁架提升到位,完成安装。
钢桁架液压提升分为三个区域,两核心筒之间段(B区)、两端悬挑段(C1、C2区);提升前,XBL(悬臂梁)之间部分(A1、A2区)采用汽车吊散拼安装,将XBL(悬臂梁)连接成整体,便于后续提升施工。

◮广汇美术馆钢桁架施工分区
提升步骤如下:
(1)XBL安装:一台220t汽车吊用于悬臂梁的吊装;
(2)钢桁架展厅楼面拼装:四台50t汽车吊用于钢桁架展厅楼面拼装,两台TC6020(臂长60m)用于次梁与弦杆支撑的吊装。
为保证起重汽车吊性能符合要求,保证汽车吊安全性能,需检查安装设备、单位资料、人员资料、安全生产协议,进场时严格检查;同时明确保障人员组织、电话、姓名。

◮广汇美术馆钢桁架展厅拼装施工平面布置图
1.漂浮感:
从秦皇湖畔远远望去,美术馆底层被茂密的绿植包围遮挡,整个建筑像是一个漂浮物,俯卧欲起。
2.大地笔韵:
总体景观设计引人入胜,流线道路,深浅蓄势,墨分五色。建筑为山,地形为岭,铺装为水,犹如生长的山水画。

3.生长感:
建筑与景观的融合犹如从土地里缓慢生长出来的建筑。
四、内装篇
“素”与“墨”
主馆内大量采用大跨度无柱开放空间,线条大气、形态方正,黑、白、灰三色低调内敛。

◮广汇美术馆止止社效果图

◮广汇美术馆止止社现场照片
整个美术馆的内装设计中,蕴含了大量的中国山水元素,山水波纹的形状随处可见,“计白当黑、以无为有”。


◮广汇美术馆大厅现场


◮广汇美术馆GAC文献中心现场


◮广汇美术馆雪莲堂艺术会客厅
五、技术应用:
1.全过程BIM(建筑信息模型)设计:
项目各专业体量大、技术含量高,交叉施工难度大,应用钢结构及曲线BIM技术,攻克此类难题过程中具有指导性。

2.无柱大空间:入口大厅

◮广汇美术馆大厅效果图

◮广汇美术馆大厅现场

◮广汇美术馆入口大厅剖面

◮广汇美术馆入口大厅:30X35M
3.超高荷载:
其中最高单体展厅“G11”层高达11米,极限悬挂重量达10吨,地面集中点荷载1000KG/M²。

◮广汇美术馆G11展厅
4.无机精磨石地坪施工工艺
无机精磨石地坪性能特点:具有9级耐磨硬度、抗重压,不起尘砂,同时还具备防潮、防霉、抗老化等优点,是现代工业场合地坪的首选。

◮无机精磨石地坪节点

◮广汇美术馆大厅(深灰色精磨石)
5.墙面艺术漆工艺:

◮广汇美术馆走廊室内效果图

◮广汇美术馆走廊现场


◮广汇美术馆墙面艺术漆工艺做法
6.专业展览设备:
美术馆拥有专业灯光设计,对色温、照度“点、线、面光源”都有严格控制,可以真实还原画作,不产生色染。
展馆内空气系统可以做到恒温恒湿,对历史珍品有足够的抗氧、抗老化的保护能力。
展馆同样拥有专业的展出设备,对超大、超宽、超重展品都有足够的转运,起重以及管控能力。

7.生态建筑:
建筑裙房种植屋顶全覆盖,大大降低了冬夏建筑内部能耗损失,建筑年均能耗有大幅降低。同时利用建筑屋顶丰富的坡度,天然形成雨水坡向及路径,形成屋顶雨水收集循环。

◮种植屋面及檐口节点
附部分艺术装置集锦:

◮一路风景©邓乐

◮搅局者©陈刚

◮衡©张琪凯

◮奇点©邓筱
结语:
广汇美术馆在其建筑设计、建筑技艺、景观以及内装、建筑文化、特殊施工手段上均有其鲜明特点,与同时同期成都范围内所完成的几个中大型“文艺”建筑并论也有其独到性,在城市区位板块上有足够的影响。施工上也较好还原设计意图,是广汇集团地产开发,城市建设的力作。
免责声明:
1. 本文为建筑设计技术分析、产品探讨,所涉及图片仅供辅助说明论点及问题,不为商用。
2. 本资料相关内容、图片是对本项目所做的示意表现,仅供参考,部分图源网络,侵删。
3. 因编辑需要,文字和图片无必然联系,仅供读者参考;
4. 楼盘规划、配套情况,最终以政府有关部门批准的文件、图则为准。
5. 本资料所述面积段均以政府最终批准文件、规划及《商品房买卖合同》为准。
6. 资料中涉及的各类设备、材料品牌仅供参考。
Tommy
2020-12-30 12:28:00很好!